В продаже ДМК 66.21
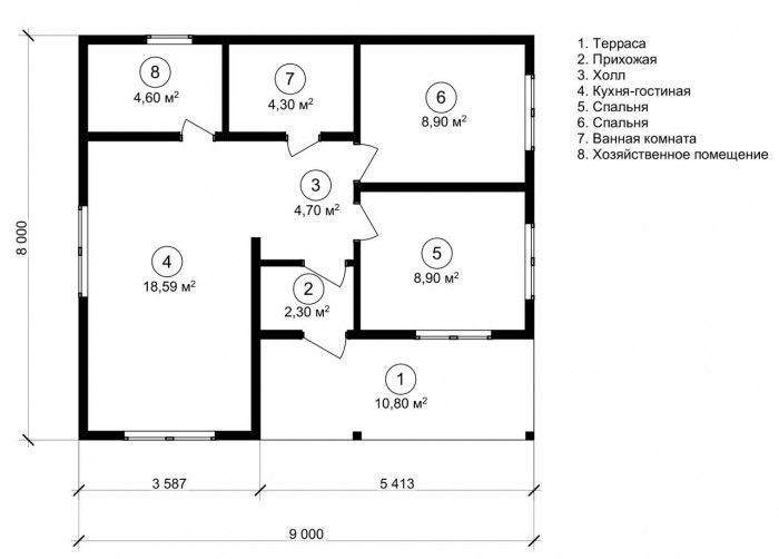
Уютный дом в котором есть все необходимое. Обратите внимание выделена хоз.комната почти 5 м.кв. Её можно легко присоединить к основной гостинной или разместить там рабочую кухню. Терраса 10.8 м.кв.
Выбор местоположения
Мы свяжемся с Вами в течение дня.