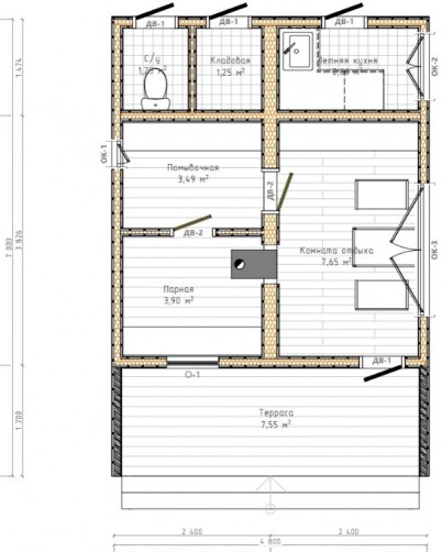
"Основная информация о каркасном доме
Каркасный дом — это быстровозводимая конструкция, где основой служит деревянный каркас, обшитый утеплителем.
Ключевые характеристики:
1. Конструкция:
2. Преимущества:
3. Этапы строительства:
Фундамент → каркас → утепление → обшивка → кровля → отделка.
4. Применение:
Дачи, коттеджи, гостевые дома, модульные здания."
Выбор местоположения
Мы свяжемся с Вами в течение дня.