Проект Артемида – это оригинальный СИП дом в стиле хай-тек, двухэтажный, с просторными террасой и балконом, а также плоской крышей.
В архитектуре и планировке дома есть несколько интересных деталей. В первую очередь нужно отметить опоясывающий половину дома балкон. Часть балкона прикрыта крышей, а фрагмент, который прикрывает собой террасу – открыт. Это дает возможность как принимать солнечные ванны на балконе, так и спокойно пообедать в тени террасы.
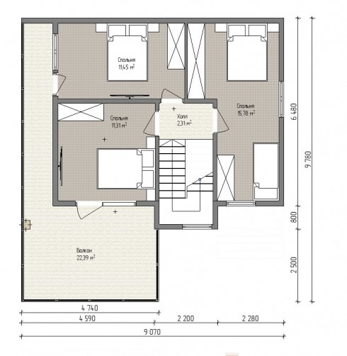
Дом разделяется на две части лестницей на второй этаж. Одна часть имеет выход на балкон и террасу, на второй расположено крыльцо и технические помещения.
Небольшое крыльцо (1,82 м2) позволяет попасть в прихожую (5,2 м2). За прихожей вход в санузел (8.18 м2) и здесь же расположены холл (4,87 м2), лестница на второй этаж и кладовая (1,72 м2). Над технической частью первого этажа расположена спальня площадью более 15 м2.
Во второй части доме на первом этаже большая кухня-гостиная, площадью 22,9 м2. Из гостиной есть выход на крытую террасу (23,46 м2).
На втором этаже холл площадью 2,31 м2 и три спальни. Про одну мы еще упоминали. Еще две имеют выходы на балкон и площадь 11,45 и 11,31 квадратных метра. Также стоит упомянуть балкон размером без малого 23 м2.
Дом очень хорош для теплых регионов. В нем есть буквально все что нужно. Затененная терраса, открытый солнцу балкон, большие окна и определенный простор для фантазии. Мы дорабатываем проекты по запросу заказчика и здесь можно достаточно легко сделать небольшой балкон над крыльцом, или же длинную 15-ти метровую спальню можно уменьшить ради дополнительного санузла. Дом из СИП панелей до 150 м2 в числе самых популярных форматов. В таком доме отлично живется семье из 4 человек и при этом затраты на отопление совсем не велики.
Выбор местоположения
Мы свяжемся с Вами в течение дня.