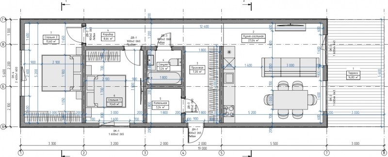
Общая площадь 93.16.
Тёплый контур + коммуникации 3 800 000
С пред чистовой отделкой 6 150 000
С чистовой отделкой 7 350 000
Комплектация теплый контур:
Все коммуникации в доме будут присутствовать:
Практически готовый дом
В доме уже есть всё, кроме фасада и гипса — далее можно завершить отделку в любое время года.
Возможность построить дом большей площадью в сравнении с домом с пред чистовой отделкой за ту же стоимость.
Строительство 2–3 месяца
Быстрый срок возведения дома с коммуникациями.
Дом с готовыми инженерными системами «под ключ». Вам останется только выполнить чистовую отделку!
Мы позаботились о самом главном, чтобы ваше новоселье было по-настоящему комфортным. В стоимость дома уже входит полный комплект современных и надежных инженерных систем:
· ✅ Канализация: Вы получаете готовую систему сточных вод на 6.3 м³, что гарантирует эффективное использование для всей семьи.
· ✅ Эффективная система отопления:
· Теплый пол повсюду: Равномерное и комфортное тепло по всему дому обеспечивают водяные теплые полы, встроенные в стяжку.
· Надежный источник тепла: Установлен мощный Электра котёл на 16 кВт.
· Забота о будущем: Заранее подведены все коммуникации для легкого перехода на газовое отопление при возможности.
· ✅ Полностью готовая электрика:
· Электрощит установлен, вся проводка разведена и выведены подрозетники для будущих розеток и выключателей.
· Для вашей кухни уже проложен отдельный силовой кабель для мощной плиты или духового шкафа.
· ✅ Комфортный микроклимат: В санузлах смонтированы вытяжки для поддержания оптимальной влажности.
· ✅ Готовые подключения для сантехники: Все трубы холодного и горячего водоснабжения, а также канализации подведены к местам установки сантехники на кухне и в санузлах.
Заселяйтесь и наслаждайтесь жизнью без лишних хлопот!
Выбор местоположения
Мы свяжемся с Вами в течение дня.